项目名称:永登全民健身中心


地点:甘肃省兰州市

项目规模:10000平米

完成时间:2024/07


项目位于甘肃省兰州市永登县,用地位于原永登县游泳馆及体育场位置。


场地南侧邻和平街,北邻永登县档案馆,西邻永登县体育场,东临永登文体大厦。


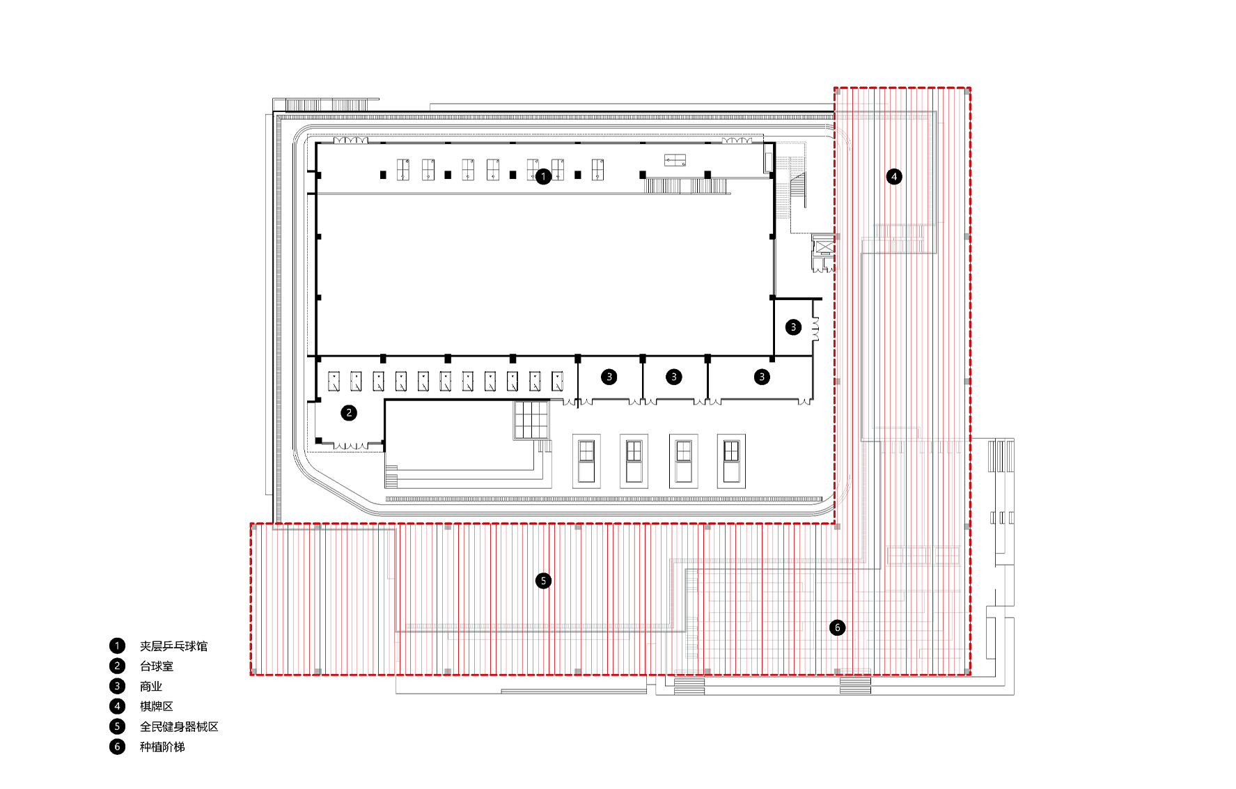
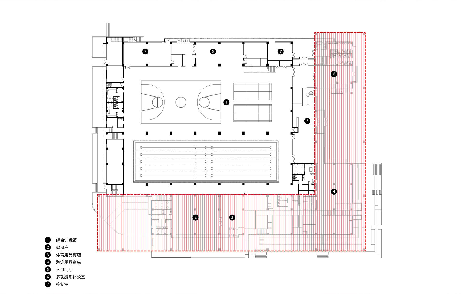
项目将原废弃游泳馆拆除,通过改造将其变成全民健身中心+体育公园,让场地完全向城市开放,既满足日常健身休憩需求,又为节日庆典提供集会场所,为永登提供了一个真正意义的城市客厅。


记忆与新生的时空对话:

在改造过程中,我们没有将90年代的看台建筑拆除,而是将其改造保留,设计成为新的空中步道,跨越水面延伸到和对岸的公园,老看台下方转变成为面向城市开放的零售服务空间。我们以新旧共生的策略延伸了城市记忆,又通过功能置换赋予建筑当代价值。


建筑与景观高度融合:

新建的全民健身中心被设计成公园空中看台的一部分,建筑体量消失,成为公园的设施。屋顶与空中步道自然连接,形成可攀登的立体公园。每层平台的广场都进行绿化处理,设置健身设施,同时提供大量围绕广场平台的可经营空间,形成复合化的功能空间。我们的设计模糊了建筑与景观的边界,创造出可进入、可体验、可经营的活力城市界面。


城市地标的红色宣言:

健身中心屋顶看台与15米高的巨型廊架相结合,不仅成为运动场和健身公园的视觉焦点,更是创造了城市性的视觉核心。廊架不仅建立了城市尺度,同时也创造了多层次的廊下活动空间。醒目的红色来源于西北地区的文化习俗,在黄褐色的日常色系中,红色带来了积极、喜庆的氛围。


永登体育公园和全民健身中心集中体现了我们的城市设计理念与空间策略:1将封闭的、单一使用的城市空间打开,面向城市,与城市连通,创造多元使用的可能性。2 不强调建筑的体量,让建筑成为景观的一部分,创造可进入、可使用的城市广场、花园空间和廊下空间,而非冷漠的城市界面。 3 引入健身、运动主题,让公园本身成为城市生活的目的地。4 预留城市活动庆典活动可能性,创造核心的市民活动空间和城市的精神核心。